
If you would like to make an offer on this property, click the button below to make an offer through our form. Please take note of the property address.
PROPERTY OVERVIEW
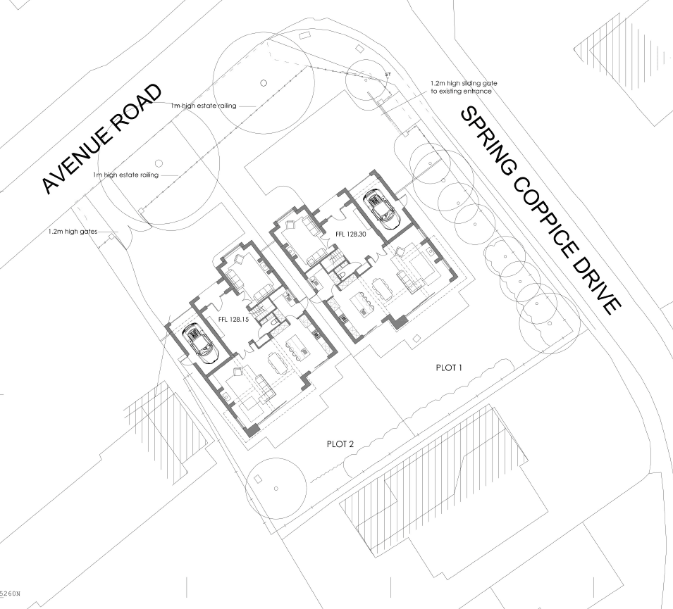
SOLD LOW PROFILE BEFORE LAUNCH - **An outstanding opportunity exists to purchase a plot with full planning permission, in the highly sought after Dorridge triangle. The completed stunning new build property, offers approximately 3,500 square feet, and is presented to the market with a purchase price of £2.25M. However, by entering into a build agreement with the existing owner; an incumbent buyer can purchase the existing plot for £750,000. This agreement offers a significant Stamp Duty saving versus purchasing after completion. Early interest is highly recommended to personalise certain aspects of the interior specification, subject to build stage and agreement with the developer.**
Presenting an outstanding opportunity to acquire a premium five-bedroom detached new build home, available circa Spring or Summer 2027, situated in the highly sought-after Dorridge Triangle. This exceptional property sits in a mature setting and represents a significant stamp duty saving for any potential buyer by purchasing a superb plot with full planning permission already in place.
Set over three floors, and extending to approximately 3,500 square feet the property will be finished to the highest specification throughout, affords five king-sized bedrooms, four luxury bathrooms, ensuring comfort and privacy for every member of the household. The accommodation is thoughtfully designed, featuring a grand entrance hallway that leads to a large and full-width open plan kitchen/dining and family area, complete with full-width sliding glass doors that create a seamless connection to the rear aspect. The bespoke SieMatic kitchen is a true focal point, enhanced by a featured stone worktop and premium Miele appliances, making it ideal for both every-day living and entertaining. Additional ground floor accommodation includes a separate spacious living room, a practical utility room, and a guest cloakroom, all designed with modern family living in mind.
Upstairs, the property offers five stunning bedrooms, three of which have their own ensuite facility and bedroom three affording a luxury Jack and Jill facility. To the second floor is a separate study for home working and the fifth bedroom which also affords its own ensuite. The property is further enhanced by a south-easterly facing rear garden, while the front aspect features a private resin driveway with electric gates and a garage equipped with an electronically controlled ‘up and over’ Hormann black sectional garage door operated by Bluetooth Bisecure Supramatic opener for secure and convenient access.
Located just a short walk from Dorridge Station, local schools, and amenities, this home offers the perfect blend of contemporary luxury and every-day convenience in a prime location. With its meticulous attention to detail, high-end finishes, and spacious, versatile layout, this is a rare chance to secure a truly special family residence in one of the area’s most desirable addresses. Early enquiries are encouraged to take advantage of the substantial stamp duty savings and the opportunity to personalise certain aspects of the interior specification, subject to build stage and agreement with the developer. Contact us today for further information or to arrange a private consultation regarding this outstanding new build opportunity.
PROPERTY LOCATION
Dorridge is a conveniently located, picturesque and a sought after village, situated on the edge of open countryside, full of local amenities (including a Sainsbury’s Superstore), has its own train station with links to Birmingham and London. Sporting facilities located nearby consist of the Knowle & Dorridge Cricket and Tennis Club, Copt Heath Golf Club and the Old Silhillians Rugby Club as well as numerous private gyms. Dorridge has a junior and infant school and the bordering village of Knowle has an excellent junior and infant school and secondary school, Arden Academy. A few minutes’ drive away is the nearby town of Solihull, which offers its own excellent state and private schools, Touchwood shopping centre, which houses many shops, restaurants, bars, cinema and John Lewis department store. Dorridge is well placed to access the M42 and M40 motorways, which then provides links to the M1, M6 and M5, enabling travel to Birmingham, Coventry and London. Resorts World and Arena, Birmingham International Airport and Birmingham International Train Station are also within easy access from Dorridge.
PORCH
GRAND ENTRANCE HALLWAY
WC
LIVING ROOM
KITCHEN/DINING & FAMILY AREA
UTILITY ROOM
FIRST FLOOR
BEDROOM ONE
ENSUITE
DRESSING AREA
BEDROOM TWO
ENSUITE
DRESSING AREA
BEDROOM THREE
JACK N JILL BATHROOM
BEDROOM FOUR
DRESSING AREA
SECOND FLOOR
STUDY
STORE AREA
BEDROOM FIVE
ENSUITE
DRESSING AREA
OUTSIDE THE PROPERTY
GARAGE
LANDSCAPED GARDEN
RESIN DRIVEWAY
ITEMS INCLUDED IN THE SALE
TBC
ADDITIONAL INFORMATION
Services - water on a meter, mains gas, electricity and sewers.
INFORMATION FOR POTENTIAL BUYERS
1. MONEY LAUNDERING REGULATIONS - Intending purchasers will be required to produce identification documentation at the point an offer is accepted as we are required to undertake anti-money laundering (AML) checks such that there is no delay in agreeing the sale. Charges apply per person for the AML checks. 2. These particulars do not constitute in any way an offer or contract for the sale of the property. 3. The measurements provided are supplied for guidance purposes only and potential buyers are advised to undertake their measurements before committing to any expense. 4. Xact Homes have not tested any apparatus, equipment, fixtures, fittings or services and it is the buyers interests to check the working condition of any appliances. 5. Xact Homes have not sought to verify the legal title of the property and the buyers must obtain verification from their solicitor.


